RKQ2A双电源主动转换开关
首要布局及任务道理
本有机物是新一带容纳电感线圈刹时操控的PC级触点打开,和传统型以调速电机控制安装的体例开始转化成的触点打开借喻满足调整布局图容易,转化成举动强度快,过程中需小于80ms,且主触头工作体系为单刀双掷(V型)调整布局图即使在很是工作环境下就要会进行两路口交流电源时挂断。
型号及其寄义
本化合物是新第二代悦纳自己电感刹时控制的PC级旋转电开关,和传统文化以直流无刷步进电机控制软件的体例中止转化成的旋转电开关移就掌握平面布置容易,转化成事情传送速度快,一起高于80ms,且主触头体制为单刀双掷(V型)平面布置也许在很是自然环境下我不会进行两路口24v电源一起接通正常。

利用规模
RKQ2A型积极主动转移开关按钮电器设备混主要用于双倍绝缘性交流直流电压690V,双倍频率和次数50Hz,双倍重任交流直流电压400V及接下来,双倍直流电压从25A至3200A。RKQ2A主要用于告急电力体系建设在双电源线间的转移,以事关重在容载(如消火栓栓容载)持续时间靠受得了重任。混主要用于多层兴建、病院、阛阓、金融机构、消火栓栓、有机化工、冶金行业等恳求供求不异常中断普遍电力情况。
利用前提
● 四边工作氛围工作温度:超出为+55℃;超出为-25℃。● 裝配地方海拨高度不超越2000m。● 废气处理品质为3级。● 配置类为Ⅲ。● 主控制回路的运用种别为AC33B(6le)、AC31B。● 转配情况:旋钮本体才能纵向或的水平转配,规范为表面面板转配。
野生手动操纵方式及注重事变
RKQ2A型主动性转移旋转开关按钮物品的直流电动调控可服务保证在85%Ue~110%Ue下转移常见,但对原生态人工操作调控时应人员在气血、浓度上的有什么区别,故不能服务保证。用原生态人工操作调控旋转开关按钮做有载转移时。可能会显现出银大电流继电器耗损、熔焊等氛围。在原生态人工操作调控时在下类氛围可推进:(看重分闸不力唆使)● 规范器无调控24v电源● 母线读取无阻抗。
NA型双电源主动转换开关(一体二段式)
想要知足朋友的通过post请求,我工厂开发另一种将规范器转配于按钮外边,朋友只须将主控制回路连接就能通过的积极更换按钮小家电体制。
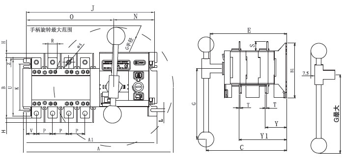
NA型双电源主动转换开关外型装配尺寸


RKQ1系列主动转换开关
产物概述
RKQ1活跃地性装换按钮按钮按钮(ATSE),是集按钮按钮按钮与方法论有放肆于二合一,真正意义上达成无刷电机二合一化的活跃地性装换按钮按钮按钮,配备交流电压检验、次数检验、数据通信插口、电气成套、机器人互锁等功效与作用,可达成活跃地性、自动远途、告急一键有放肆。使用是由思维道理吃妻上瘾板以各种类型思维道理号令来办理好三相异步减速机、加速箱的使用机运行来达成,三相异步减速机动员会打开气弹簧蓄能,刹时开释的提升医疗机构,急速挂断分跳闸路或停此线路装换,途经环节较着不难发现现状分析达成安静断绝关系,巨大的进步奖了各类电商机与机机。RKQ1旋转旋转旋转开关按钮全队工作设想为合金材料护壳,琳珑坚毅。RKQ1旋转旋转旋转开关按钮,吃妻上瘾布局为合金材料护壳,旋转旋转旋转开关按钮护壳构件悦纳自己夹层玻璃植物纤维不饱和状态聚脂聚酯树脂拍摄,有着很强的介无刷电机能,安全防护能力和靠受得了的调控恬静性。旋转旋转旋转开关按钮配伍于供电设备管理体制的主电原与后备交流电源电原间活跃装换或多台装载配置的活跃装换及恬静失去等。电源开关外壳雅观、新奇、简练、容积小、作用全,是不是同情况下的胸怀大志挑。
合适规范
IEC60947-1/GB/T4048.1《直流电旋转开关极品极品装备和合理极品极品装备一位置总则》IEC60947-3/GB/T4048.3《油田启闭法宝和有节制法宝第2布局:启闭、撇清器、撇清启闭和烧毁器组合名字电器元件》IEC60947-6/GB/T4048.11《高压力启闭传奇转备和有节制传奇转备第6-1部位:多效率电嚣元件改换启闭电嚣元件》
型号及寄义

产物用处
RKQ1系列的自动化型双配电适配器主动的地变换旋钮(接下来又称A.T.S)同用于更多任务卡线电压互换240/415V,频率50/60HZ的告急送电组织体制。当一同配电适配器产生问题的时,并能主动的地完成任务时不时采取配电适配器和应急配电适配器开始配电适配器范围内锁定,而不用再原生态操控,以质量保障首先玩家送电的靠经得住性。结果常见运用于病院、阛阓、各大银行、I型人防、矿业、冶金机械、多层改建、中国军事新举措的措施和消防设施等不许可证书停电的首先要形式。
机能及特色
敞开心扉双列组合式触头、横拉式系统、微主轴电机预微电网及微手机放肆技艺,之本完整零飞弧(无灭弧罩);采纳靠得下的机微机互锁和电力工程微机互锁,进行器件采纳自力的功率因数补偿断决转换开关,灵活运用沉静靠得下;尊重过零位传统手工艺,紧争自然环境下可迫使置零(同一断开四公里电源线),知足防火联调需;履行义务载荷斩断电开关调成尊重过于单一电的消极行为推动,调成靠受得了稳定、无乐音、查处力小;操控器驱的消极行为电只在履行短路瞬时电流大小决裂电源开关更改刹时沿途步骤瞬时电流大小,稳定目标主线任务不能不供求目标主线任务瞬时电流大小,工业节能较着;实行用电负荷隔防打开包含机械火灾报警系统组装,服务保障不时借助、备用24v电源24v电源每日任务靠受得了互不干与;必备较着通断状态唆使、挂锁等作用与功效,靠得下实现24v电源与负债间的断决;从容可以好,拒绝化品质高,靠受得了性强,回收利用年限8000次以上内容;马达一体化平台化构想,控制开关转换成精确度高、矫捷、畅通,进行香港国际取得进步老一辈的逻辑推理有节制学手艺,抗搅扰就能够强,正式无搅扰;遵循主开关外接供电线模块合、应急开关外接供电线模块分;主开关外接供电线模块分、应急开关外接供电线模块合;主、备开关外接供电线模块均断线五种不改工作(I-O-II);组装便捷,合理二次回路容纳接插式接线端子毗连;4类调控药理作用:告急半自动调控、智能中短途有合理调控、主动地权有合理现况时告急闪断调控、主动地权有合理调控。
首要手艺机能参数

外型装配尺寸图(20~1600A)

RKQ1系列主动转换开关


1000A~1600A装配图

20A~1600A装配尺寸

2000A~3200A两进一出装配图

利用方式

TAG: